Prisma 187

Sluttningshus med ryggåstak, vinklar och generösa ytor

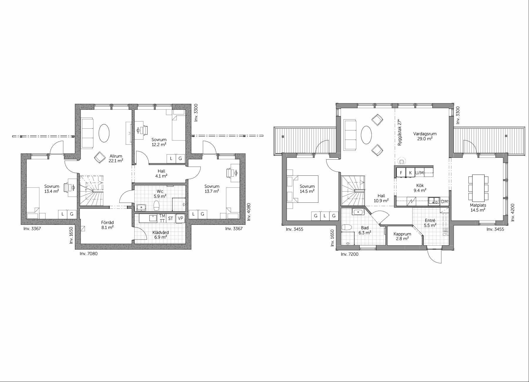
Prisma 187 är ett klassiskt sluttningshus i vinkel, skapat för att ge både rymd, ljus och möjligheten att ta vara på utsikten på bästa sätt. Med ryggåstak, stora fönsterpartier och två taktäckta balkonger erbjuder modellen en harmonisk kombination av funktion och elegant arkitektur.

Entréplan med ryggåstak och ljus i fokus

På entréplanet möts du av ett luftigt kök och vardagsrum där ryggåstaket och spetsfönstren skapar en imponerande rymd och ett fantastiskt ljusinsläpp. Det praktiska parallellköket ligger i direkt anslutning till matplatsen, som är placerad i husets vinkel för att maximera både utsikt och kontakt med omgivningen.

Från matplatsen når du en av husets två balkonger – en idealisk plats för morgonkaffet eller en lugn stund i kvällssolen. På samma plan finns även ett badrum samt ett sovrum med utgång till husets andra balkong.

Sluttningsvåning med gott om plats för familjen

Den centralt placerade trappan leder ner till sluttningsvåningen, där husets mer privata del breder ut sig. Här finns:

  • Tre stora sovrum
  • Ett rymligt allrum med plats för sociala aktiviteter eller avkoppling
  • Klädvård / tvättstuga
  • Wc
  • Praktiska förvaringsytor

Planlösningen skapar en tydlig avdelning mellan det sociala entréplanet och den privata vardagen på nedre plan – perfekt för familjer som värdesätter både umgänge och avskildhet.

Ett sluttningshus som förenar funktion och tidlös design

Prisma 187 är det perfekta valet för dig som söker ett sluttningshus med genomtänkta ytor, hög kvalitet och en härlig kontakt med naturen. Den klassiska vinkeln, de stora fönstren och de två balkongerna gör att huset känns både öppet, inbjudande och harmoniskt.

Planlösning och fasadritning

Våra flexibla husmodeller gör det enkelt att anpassa planlösningen. Låt ditt hem bli precis så personligt som du vill ha det.

Spegelvänd planlösning och fasadritning

Vanliga frågor om Prisma 187

Vad är Prisma 187 för typ av hus?

Prisma 187 är ett klassiskt sluttningshus i vinkel med ryggåstak, stora fönsterpartier och generösa ytor. Huset är utformat för att maximera ljus, rymd och utsikt.

Passar Prisma 187 för sluttande tomter?

Ja, Prisma 187 är särskilt anpassat för sluttningstomter. Planlösningen utnyttjar nivåskillnaderna för att skapa ett socialt entréplan och en mer privat sluttningsvåning.

Hur är planlösningen i Prisma 187?

Entréplanet rymmer kök, matplats och vardagsrum i öppen planlösning med ryggåstak samt utgång till balkong. Här finns även badrum och ett sovrum med egen balkong. Sluttningsplanet innehåller tre sovrum, allrum, klädvård och wc.

Hur många sovrum har Prisma 187?

Prisma 187 har totalt fyra sovrum – ett på entréplanet och tre på sluttningsplanet – vilket gör huset väl lämpat för familjer med behov av både gemensamma och privata ytor.

Vad innebär husets vinkel?

Den vinklade formen skapar skyddade uteplatser, bättre ljusinsläpp och möjlighet att ta vara på utsikten från flera håll. Den ger också en tydlig arkitektonisk karaktär.

Finns det balkonger i Prisma 187?

Ja, huset har två taktäckta balkonger placerade i olika väderstreck, vilket gör det möjligt att njuta av utomhusmiljön vid olika tider på dagen.

Hur är ljusinsläppet i Prisma 187?

Med ryggåstak, spetsfönster och stora fönsterpartier får Prisma 187 ett mycket generöst ljusinsläpp och en luftig känsla genom hela entréplanet.

Kan Prisma 187 anpassas efter egna önskemål?

Ja, Borohus erbjuder stor flexibilitet. Planlösning, materialval och tillval kan anpassas för att skapa ett personligt hem utifrån dina behov.

Vilken stil passar Prisma 187?

Prisma 187 passar dig som söker ett sluttningshus med tidlös design, klassiska proportioner och moderna funktioner – med stark koppling till natur och omgivning.

Våra villor Välj villamodell!
Leveransbeskrivning och produktinformation Läs om Borohus höga standard och fina tillval!
Intresserad? Kontakta oss eller beställ katalog

Kontakta oss     Beställ katalog

Finansiering Trygg husfinansiering via Nordea