Karisma 157

H-format enplanshus med skyddad uteplats och ljusa sällskapsytor

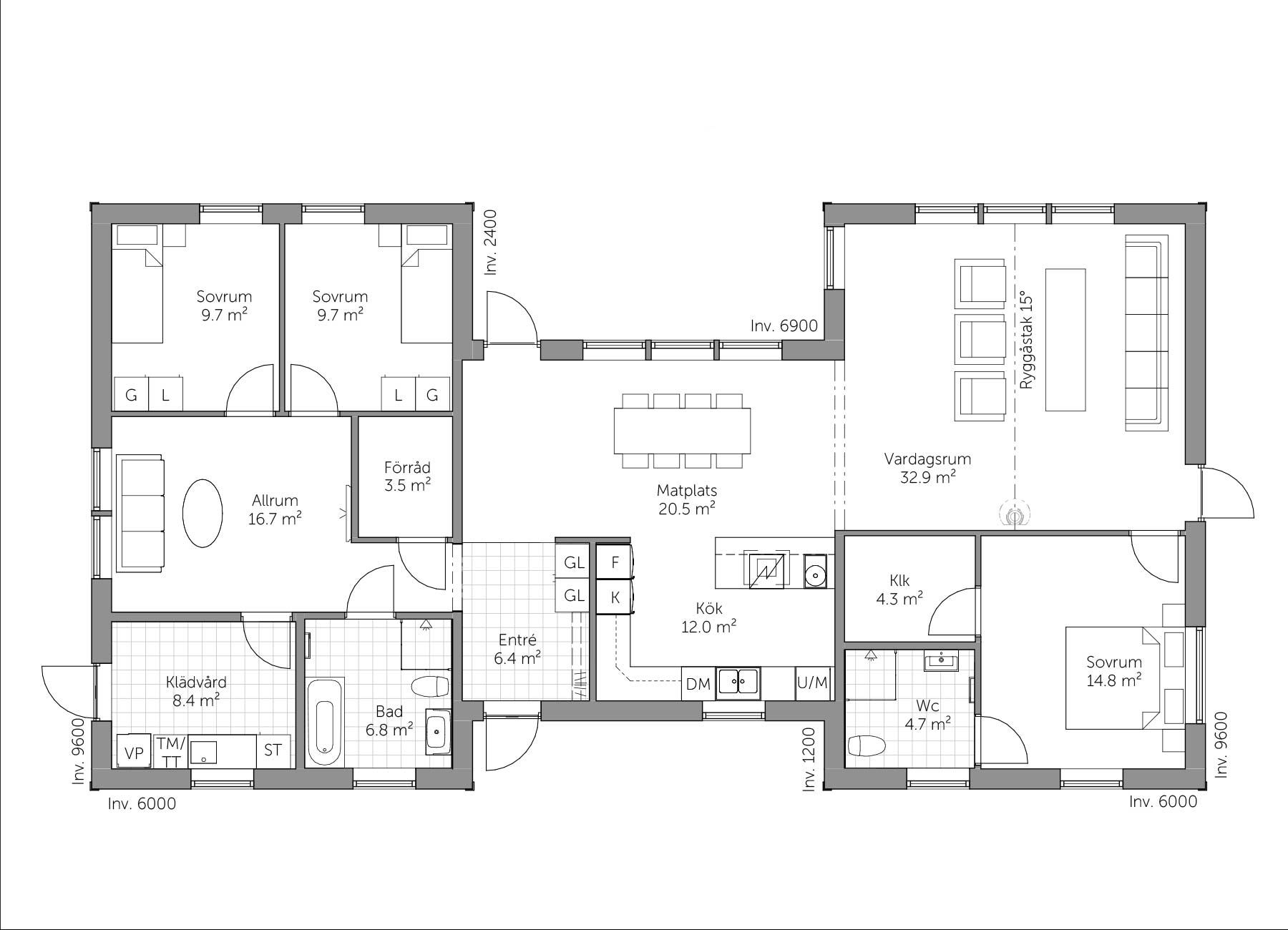
Karisma 157 är ett rymligt H-format enplanshus med en välplanerad och funktionell planlösning där ljus, rymd och vardagskomfort står i centrum. Husets form skapar en skyddad uteplats på trädgårdssidan – en naturlig samlingsplats för både avkoppling och umgänge under stora delar av året.

Sociala ytor med öppen och ljus känsla

Det välplanerade köket är utformat med matlagningen vänd mot matplatsen, vilket skapar en öppen och social miljö. Matplatsen har en naturlig koppling till vardagsrummet, där ryggåstaket och det generösa fönsterpartiet bidrar till ett fantastiskt ljusinsläpp och en luftig atmosfär.

Tydlig uppdelning mellan privat och gemensamt

Karisma 157 har en genomtänkt zonindelning som ger både gemenskap och avskildhet. Föräldrasovrummet är avskilt från barnens del och erbjuder både eget wc och en generös klädkammare. På motsatt sida av huset finns två barnsovrum, ett allrum samt praktiska utrymmen som förråd, klädvård och badrum.

Ett enplanshus för ett bekvämt familjeliv

Med sina ljusa sällskapsytor, skyddade uteplats och tydliga rumsindelning är Karisma 157 ett stilfullt och välbalanserat hem. Ett enplanshus där både familjeliv, vardag och privatliv får plats i en genomtänkt helhet.

Planlösning och fasadritning

Skapa ett hem på dina villkor med hjälp av våra flexibla och genomtänkta husmodeller.

Spegelvänd planlösning och fasadritning

Vanliga frågor om Karisma 157

Vad är Karisma 157 för typ av hus?

Karisma 157 är ett rymligt enplanshus i H-form med tydlig zonindelning och skyddad uteplats.

Hur är planlösningen i Karisma 157?

Huset har sociala ytor med kök, matplats och vardagsrum i öppen koppling samt en privat del med föräldrasovrum och separat barnavdelning.

Hur många sovrum har huset?

Karisma 157 har tre sovrum – ett föräldrasovrum och två barnsovrum.

Finns det skyddad uteplats?

Ja, husets H-form skapar en naturligt skyddad uteplats på trädgårdssidan.

Vad kännetecknar vardagsrummet?

Vardagsrummet har ryggåstak och stora fönsterpartier som ger ett generöst ljusinsläpp och känsla av rymd.

Har föräldrasovrummet egna funktioner?

Ja, föräldrasovrummet har både eget wc och en rymlig klädkammare.

Finns det allrum i huset?

Ja, huset har ett allrum i anslutning till barnens avdelning – perfekt som lekrum eller tv-rum.

Kan Karisma 157 anpassas efter egna önskemål?

Ja, Borohus erbjuder möjlighet att anpassa planlösning, materialval och tillval för att skapa ett personligt hem.

Våra 1-planshus Välj husmodell
Våra villor Välj villamodell!
Leveransbeskrivning och produktinformation Läs om Borohus höga standard och fina tillval!
Intresserad? Kontakta oss eller beställ katalog

Kontakta oss     Beställ katalog

Finansiering Trygg husfinansiering via Nordea