Karisma 134

H-format enplanshus med pergola och generösa ytor

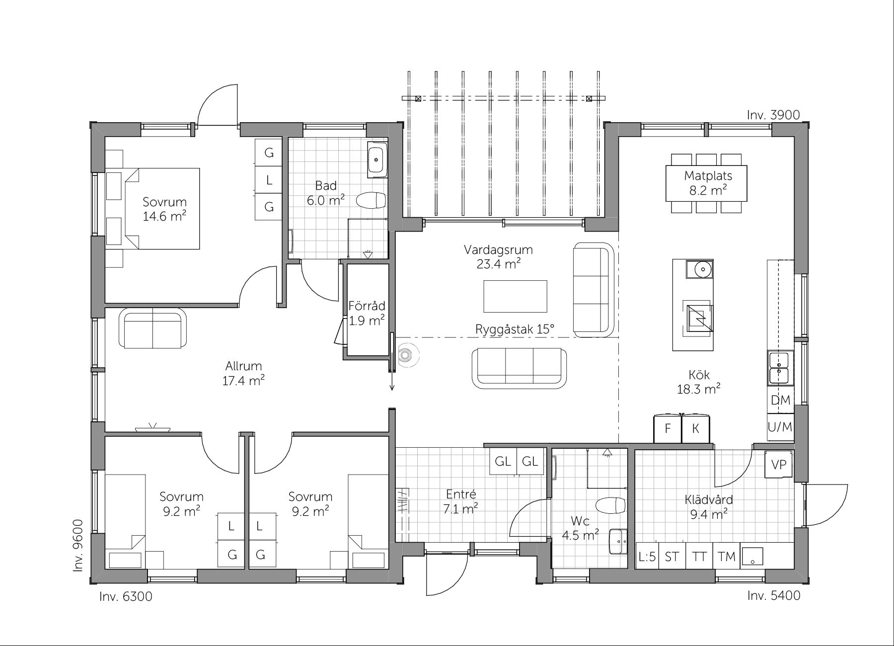
Karisma 134 är ett stilfullt enplanshus i H-form med brutet sadeltak och en elegant pergola som skapar en naturlig och harmonisk övergång mellan inne- och utemiljö. Husets arkitektur kombinerar modern funktion med tidlös form och ger ett hem med både karaktär och trivsel.

Ljusfyllt hjärta med ryggåstak

Den indragna entrén leder in till husets hjärta – en stor och öppen yta där kök och vardagsrum samspelar. Ryggåstaket tillsammans med generösa fönsterpartier ger rymd, ljus och en härlig atmosfär. Köket är utrustat med en praktisk köksö som knyter samman matlagning och umgänge på ett naturligt sätt.

Sömlös koppling till uteplatsen

Från vardagsrummet nås uteplatsen under pergolan via ett elegant skjutparti. Här skapas en självklar plats för umgänge, middagar och avkoppling, där ute blir en förlängning av inne.

Genomtänkt planlösning med avskildhet

Husets planlösning är noggrant utformad för att ge både samhörighet och privatliv. Ett allrum ligger avskilt och fungerar som en mjuk övergång mellan föräldrasovrummet och de två mindre sovrummen – en lösning som passar perfekt för familjeliv i olika skeden.

Ett harmoniskt enplanshus för hela familjen

Karisma 134 är ett välbalanserat hem där form och funktion möts i perfekt harmoni. Ett modernt enplanshus med generösa ytor, tydlig struktur och en stark koppling till utemiljön.

Planlösning och fasadritning

Anpassa planlösningen och låt ditt hem bli en spegling av din personlighet med våra flexibla husmodeller.

Spegelvänd planlösning och fasadritning

Vanliga frågor om Karisma 134

Vad är Karisma 134 för typ av hus?

Karisma 134 är ett enplanshus i H-form med brutet sadeltak, pergola och öppna sociala ytor.

Hur är planlösningen i Karisma 134?

Huset har kök och vardagsrum i en öppen planlösning samt en mer privat del med sovrum och allrum.

Hur många sovrum har huset?

Karisma 134 har tre sovrum – ett föräldrasovrum och två mindre sovrum.

Finns det ryggåstak i huset?

Ja, vardagsrum och kök har ryggåstak som ger extra rymd och ljus.

Hur fungerar kopplingen mellan inne och ute?

Via ett skjutparti från vardagsrummet nås uteplatsen under pergolan, vilket skapar en naturlig övergång mellan inne och ute.

Finns det allrum i huset?

Ja, huset har ett allrum som är placerat mellan sovrumsdelarna och ger både gemenskap och avskildhet.

Passar Karisma 134 för familjeliv?

Ja, den tydliga zonindelningen och de generösa ytorna gör huset mycket väl anpassat för familjer.

Kan Karisma 134 anpassas efter egna önskemål?

Ja, Borohus erbjuder flexibilitet i planlösning, materialval och tillval för att skapa ett personligt hem.

Våra 1-planshus Välj husmodell
Våra villor Välj villamodell!
Leveransbeskrivning och produktinformation Läs om Borohus höga standard och fina tillval!
Intresserad? Kontakta oss eller beställ katalog

Kontakta oss     Beställ katalog

Finansiering Trygg husfinansiering via Nordea