femte Tunet
Ett klassiskt fritidshus
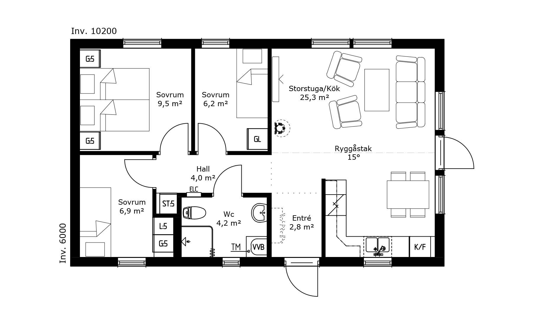
Femte Tunet är ett klassiskt fritidshus med en tydlig uppdelning mellan vila och aktivitet. Det vill säga att sovrummen är placerade i ena halvan av huset och de gemensamma ytorna i den andra.
I köket och storstugan är det ryggåstak vilket ger rymd till rummet och köket i vinkel innebär en närhet till alla dess funktioner och gott om arbetsyta. Härifrån är också utgången till uteplatsen vilken blir en självklar samlingsplats i ett fritidshus.
För en bredare planlösning ta en titt på sjunde Tunet.
Takutsprång vid entrén
Kök i vinkel
Köp till braskamin