Karisma 116

Smakfullt enplanshus med ljus, rymd och tydlig zonindelning

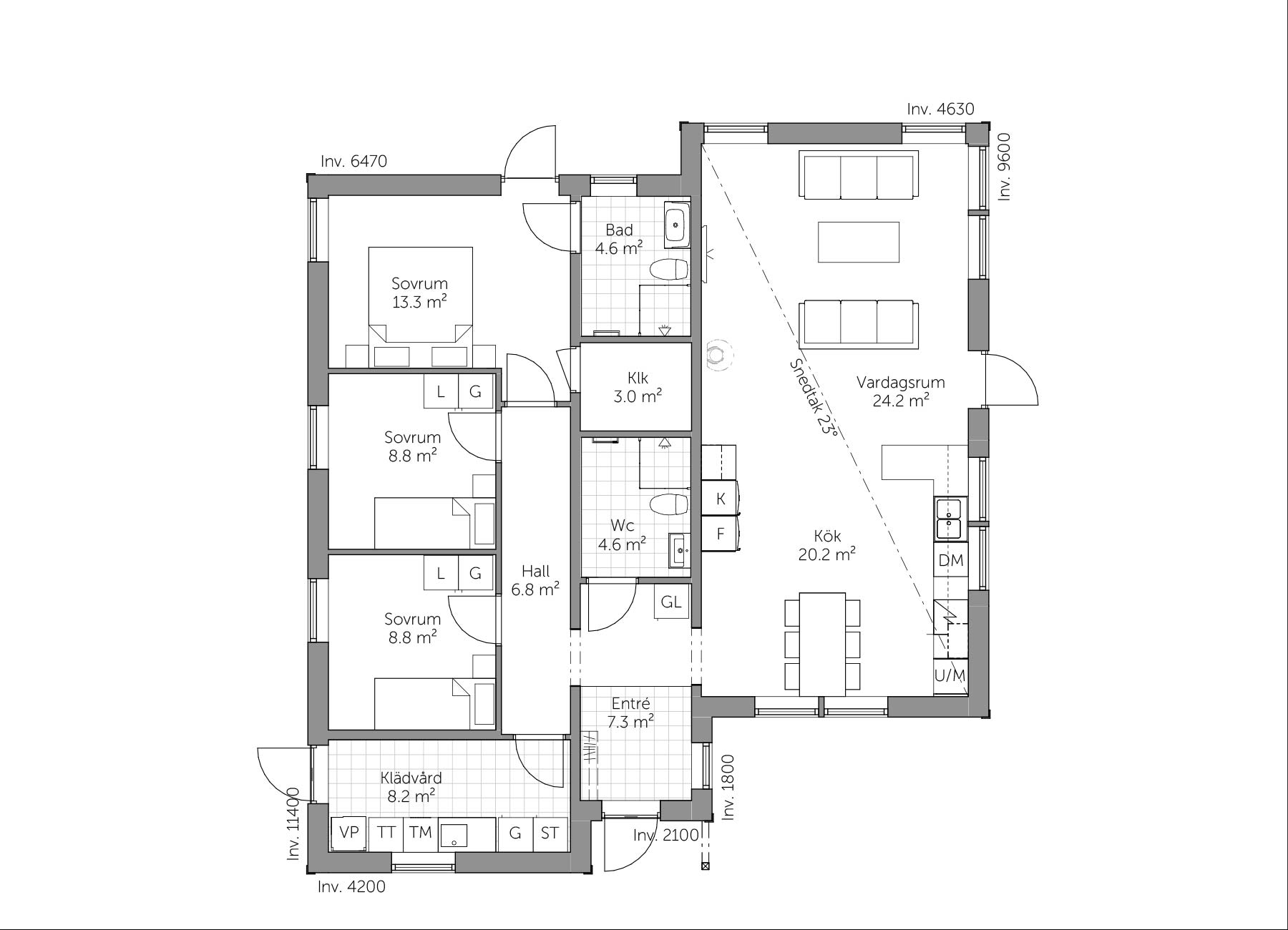
Karisma 116 är ett modernt och genomtänkt enplanshus som kombinerar spännande arkitektur med praktiska lösningar för ett bekvämt och harmoniskt boende. Husets form och planlösning skapar en tydlig uppdelning mellan sociala och privata ytor – perfekt för ett fungerande familjeliv.

Sociala ytor med volym och ljus

Den indragna och väderskyddade entrén leder in till husets sociala del, där kök, matplats och vardagsrum samspelar i en öppen planlösning. Snedtaket och den väl avvägda fönstersättningen skapar en ljus och luftig atmosfär med generös volym – en naturlig samlingsplats för både vardag och umgänge.

Privat familjedel med extra komfort

I den andra delen av huset ligger familjens privata avdelning med tre sovrum, wc och klädvård. Det stora sovrummet är extra avskilt och har både egen klädkammare och eget badrum, vilket ger en bekväm och lyxig känsla i vardagen.

Ett modernt hem i balans

Karisma 116 är ett hem för dig som söker ett enplanshus där arkitektoniska detaljer, ljus och funktionalitet går hand i hand. Ett genomtänkt boende som erbjuder både rymd, avskildhet och trivsel.

Planlösning och fasadritning

Med våra husmodeller får du friheten att forma planlösningen så att den passar dina behov och drömmar.

Spegelvänd planlösning och fasadritning

Vanliga frågor om Karisma 116

Vad är Karisma 116 för typ av hus?

Karisma 116 är ett modernt enplanshus med tydlig uppdelning mellan sociala och privata ytor.

Hur är planlösningen i Karisma 116?

Huset har öppna sociala ytor i ena delen och en privat sovrumsdel med tre sovrum i den andra.

Hur många sovrum har huset?

Karisma 116 har tre sovrum, varav ett större master bedroom med eget badrum och klädkammare.

Finns det snedtak i huset?

Ja, de sociala ytorna har snedtak som skapar extra rymd och ett generöst ljusinsläpp.

Finns det flera badrum?

Ja, huset har ett badrum i master bedroom samt ett separat wc i den privata delen.

Hur är entrén utformad?

Entrén är indragen och väderskyddad, vilket ger både funktion och ett välkomnande intryck.

Passar Karisma 116 för familjeliv?

Ja, planlösningen är mycket familjevänlig med tydlig zonindelning och smart vardagslogistik.

Kan Karisma 116 anpassas efter egna önskemål?

Ja, Borohus erbjuder möjlighet att anpassa planlösning, materialval och tillval för att skapa ett personligt hem.

Våra 1-planshus Välj husmodell
Våra villor Välj villamodell!
Leveransbeskrivning och produktinformation Läs om Borohus höga standard och fina tillval!
Intresserad? Kontakta oss eller beställ katalog

Kontakta oss     Beställ katalog

Finansiering Trygg husfinansiering via Nordea