Karisma 110
Stilrent enplanshus med ryggåstak och generösa glaspartier
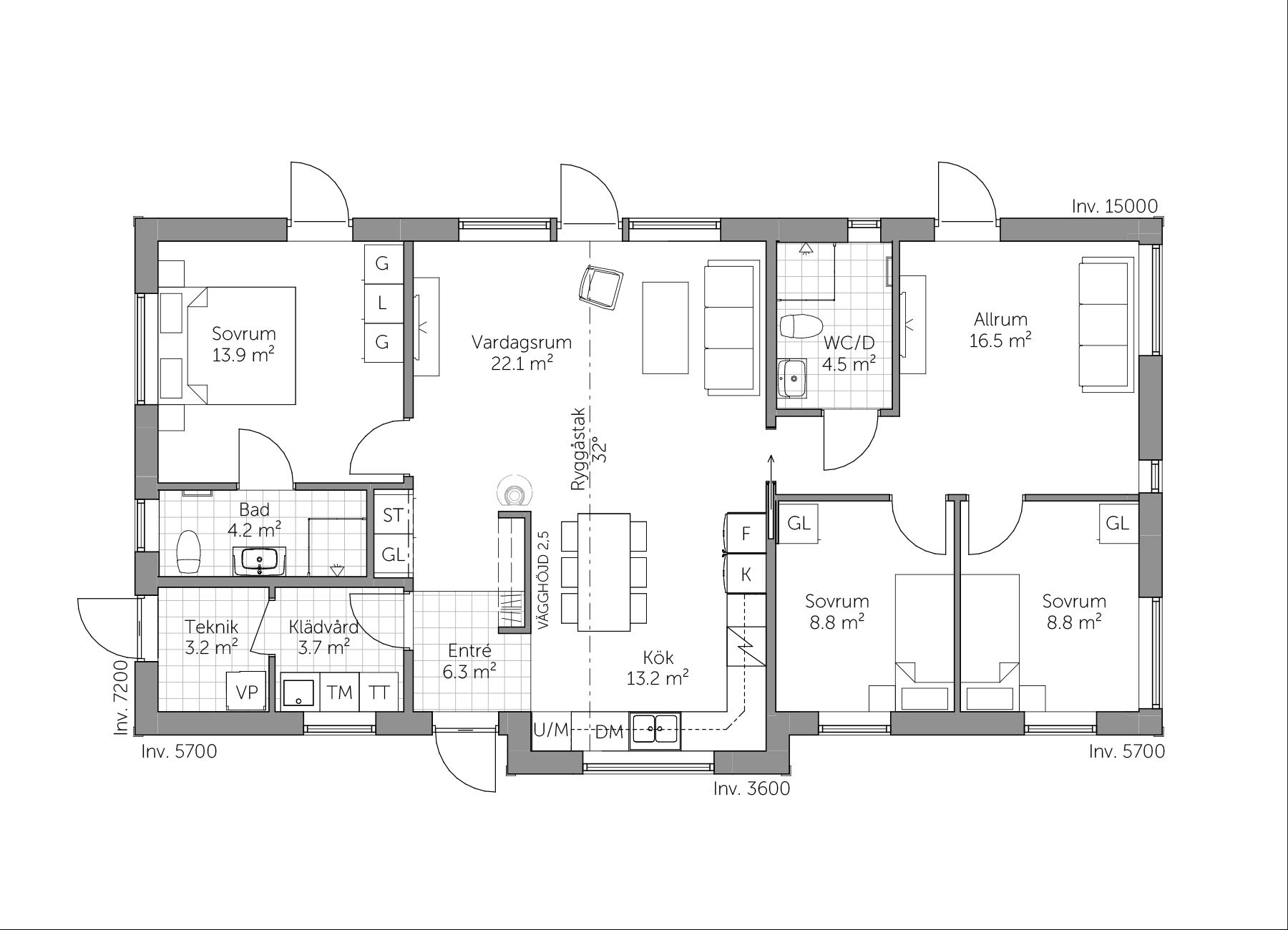
Karisma 110 är ett välproportionerat enplanshus med genomtänkt planlösning och spännande fönstersättning. De generöst glasade öppningarna tillsammans med husets arkitektur skapar ett hem med mycket ljus, rymd och ett modernt uttryck.
Öppen samvaroyta med imponerande takhöjd
Den väderskyddade entrén leder in till en rymlig och öppen gemensam yta där kök, matplats och vardagsrum smälter samman. Husets hjärta är vardagsrummet, som imponerar med ett ryggåstak på nästan fyra meters höjd. Spetsfönster i båda gavelspetsarna ger ett fantastiskt ljusflöde och förstärker känslan av rymd och öppenhet.
Avskilda privata ytor för lugn och komfort
De privata delarna är smart placerade för att skapa en lugn och avskild boendemiljö. Föräldrasovrummet ligger separat och har eget badrum, medan de två övriga sovrummen tillsammans med allrum och wc bildar en egen familjedel – perfekt för barn eller gäster.
Smidig vardagslogistik
Klädvård och ett separat teknikrum är strategiskt placerade i anslutning till köket, vilket förenklar vardagen och ger praktiska flöden i hemmet.
Ett ljust och harmoniskt hem i ett plan
Karisma 110 är det perfekta valet för dig som söker ett luftigt, funktionellt och stilrent enplanshus med generösa ljusinsläpp och en harmonisk planlösning.