Karisma 151

Rymligt ladhus med harmonisk symmetri

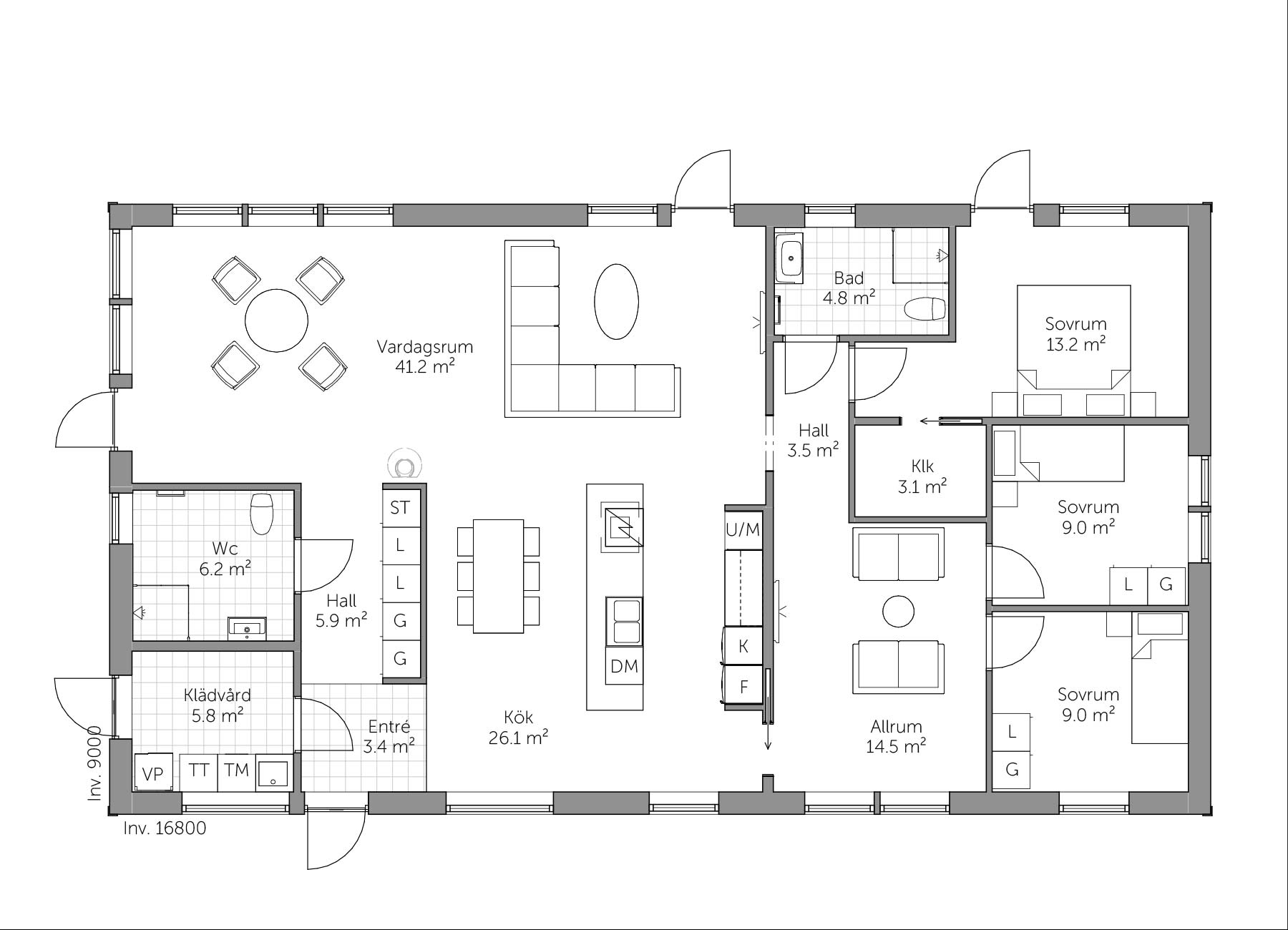
Karisma 151 är ett generöst ladhus i ett plan med välbalanserad fönstersättning och ett harmoniskt, stilrent uttryck. Den genomtänkta arkitekturen och planlösningen skapar ett hem där både gemenskap och avskildhet får gott om utrymme.

Välkomnande entré och socialt hjärta

I entrén möts du av en rymlig och välkomnande hall med goda förvaringsmöjligheter. Här finns även praktiskt placerad klädvård och wc, vilket ger en smidig vardag.
Härifrån leds du vidare in i husets hjärta – en öppen och ljus samvaroyta där kök, matplats och vardagsrum samspelar. Det funktionella parallellköket är utformat för att matlagningen ska ske i nära kontakt med resten av rummet, vilket skapar en trivsam miljö för både vardag och sociala tillfällen.

Avskild privatdel för familjen

Husets bortre del är avsedd för familjens privata utrymmen. Här finns tre sovrum, ett allrum och ett badrum, samlade i en lugn och avskild zon. Föräldrasovrummet har en egen klädkammare som ger extra komfort och praktisk förvaring.

Ett enplanshus med balans och funktion

Karisma 151 är ett välplanerat och rymligt enplanshus som passar perfekt för dig som vill ha lite extra utrymme utan att kompromissa med funktion eller estetik. Ett hem där stilren arkitektur möter smart planering – anpassat för både gemenskap och vila.

Planlösning och fasadritning

Våra anpassningsbara hus gör det enkelt att forma ett personligt och funktionellt hem.

Spegelvänd planlösning och fasadritning

Vanliga frågor om Karisma 151

Vad är Karisma 151 för typ av hus?

Karisma 151 är ett rymligt ladhus i ett plan med tydlig uppdelning mellan sociala ytor och privata rum.

Hur är planlösningen i Karisma 151?

Huset är indelat i två avdelningar: en social del med kök, matplats och vardagsrum samt en privat del med sovrum, allrum och badrum.

Hur många sovrum har huset?

Karisma 151 har tre sovrum, samlade i den privata delen av huset.

Finns det allrum i huset?

Ja, huset har ett allrum i anslutning till sovrummen – perfekt som tv-rum eller lugn samlingsplats.

Hur är köket utformat?

Köket är ett funktionellt parallellkök med nära kontakt till både matplats och vardagsrum, vilket skapar en social och praktisk matlagningsmiljö.

Är huset anpassat för familjeliv?

Ja, den tydliga zonindelningen och de generösa ytorna gör huset mycket väl anpassat för familjer.

Finns det gott om förvaring?

Ja, huset erbjuder bra förvaring i hallen, klädvården samt klädkammare i föräldrasovrummet.

Kan Karisma 151 anpassas efter egna önskemål?

Ja, Borohus erbjuder möjlighet att anpassa planlösning, materialval och tillval för att skapa ett personligt hem.

Våra 1-planshus Välj husmodell
Våra villor Välj villamodell!
Leveransbeskrivning och produktinformation Läs om Borohus höga standard och fina tillval!
Intresserad? Kontakta oss eller beställ katalog

Kontakta oss     Beställ katalog

Finansiering Trygg husfinansiering via Nordea