Karisma 131

Ladhus med öppna ytor och praktisk planlösning

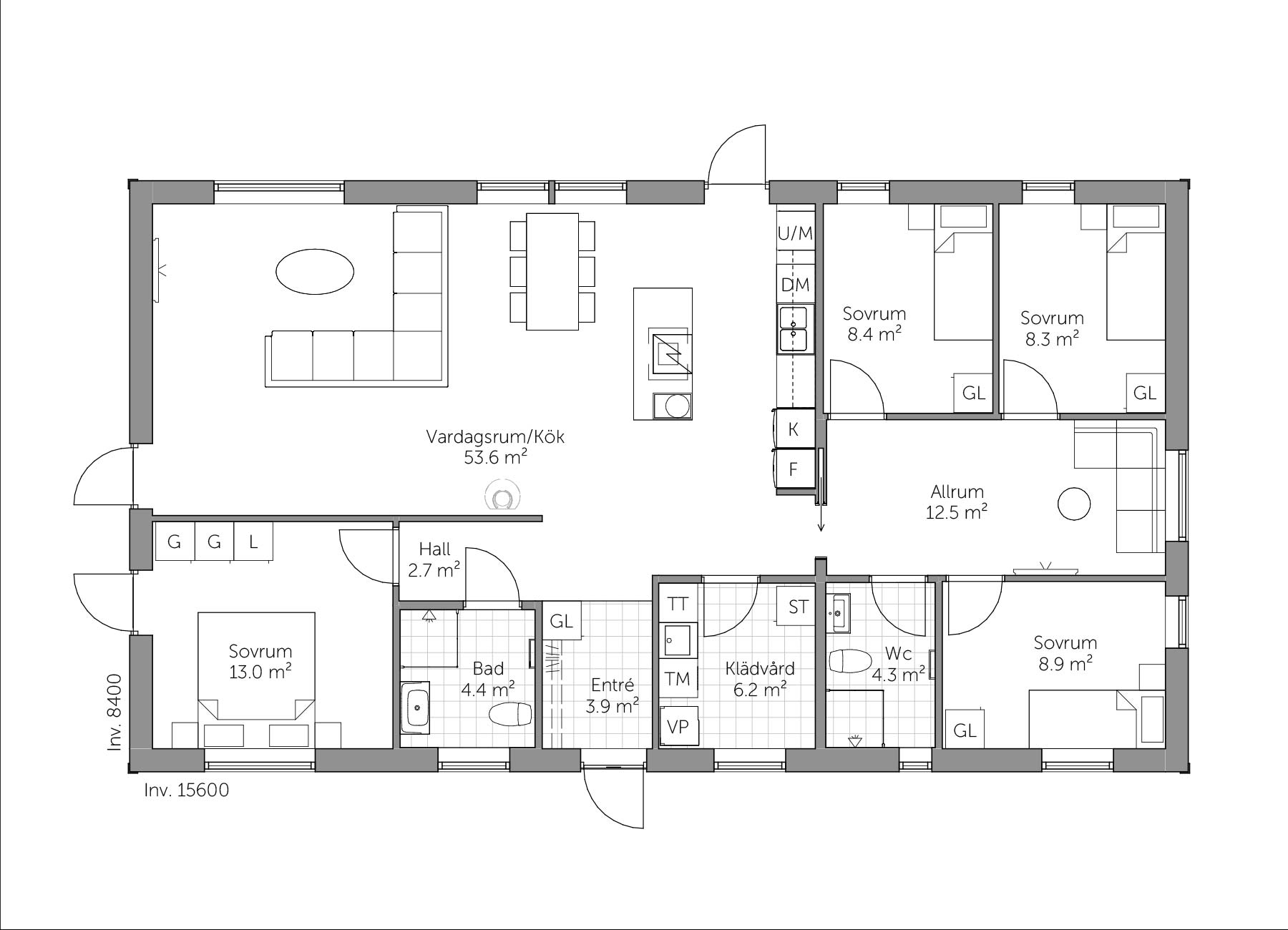
Karisma 131 är ett modernt enplanshus i ladhusstil där den stilrena formen skapar ett tydligt och samtida uttryck. Planlösningen är genomtänkt och funktionell, med fokus på både sociala ytor och familjens behov av avskildhet.

Smidig entré och sociala ytor

I anslutning till entrén finns en praktisk avdelning med badrum och klädvård – perfekt placerad för att förenkla vardagens logistik. På motsatt sida av huset öppnar kök och vardagsrum upp sig i en generös och ljus samvaroyta.
Köket är utrustat med en centralt placerad köksö som skapar naturlig kontakt mellan matlagning och umgänge, vilket gör rummet till hemmets självklara samlingspunkt.

Fyra sovrum med tydlig zonindelning

Huset rymmer totalt fyra sovrum, vilket ger gott om plats för hela familjen. Föräldrasovrummet är avskilt från de övriga tre sovrummen, som i sin tur är samlade kring ett allrum med närhet till wc. Denna uppdelning ger både gemenskap och möjlighet till lugn och avskildhet.

Ett funktionellt ladhus för familjeliv

Karisma 131 är ett välbalanserat hem där stil möter funktionalitet. Med sina öppna ytor, tydliga zoner och smarta vardagslösningar är detta ett ladhus som passar perfekt för familjen som söker ett modernt och lättlevt enplansboende.

Planlösning och fasadritning

Våra flexibla huskoncept gör det lätt att skapa ett hem som känns personligt och genomtänkt.

Spegelvänd planlösning och fasadritning

Vanliga frågor om Karisma 131

Vad är Karisma 131 för typ av hus?

Karisma 131 är ett enplanshus i ladhusstil med modern arkitektur och praktisk planlösning.

Hur är planlösningen i Karisma 131?

Huset har sociala ytor med kök och vardagsrum i öppen planlösning samt en mer privat sovrumsdel med allrum.

Hur många sovrum har huset?

Karisma 131 har fyra sovrum – ett föräldrasovrum och tre övriga sovrum.

Finns det allrum i huset?

Ja, huset har ett allrum placerat i anslutning till barnens sovrum och wc.

Hur är köket utformat?

Köket har en centralt placerad köksö som skapar en social matlagningsmiljö i nära kontakt med vardagsrummet.

Var ligger klädvården?

Klädvården är praktiskt placerad nära entrén tillsammans med badrum, vilket underlättar vardagen.

Passar Karisma 131 för barnfamiljer?

Ja, med fyra sovrum, allrum och tydlig zonindelning är huset mycket väl anpassat för familjeliv.

Kan Karisma 131 anpassas efter egna önskemål?

Ja, Borohus erbjuder möjlighet att anpassa planlösning, materialval och tillval för att skapa ett personligt hem.

Våra 1-planshus Välj husmodell
Våra villor Välj villamodell!
Leveransbeskrivning och produktinformation Läs om Borohus höga standard och fina tillval!
Intresserad? Kontakta oss eller beställ katalog

Kontakta oss     Beställ katalog

Finansiering Trygg husfinansiering via Nordea