Karisma 104

Elegant enplanshus med skyddad T-formad design

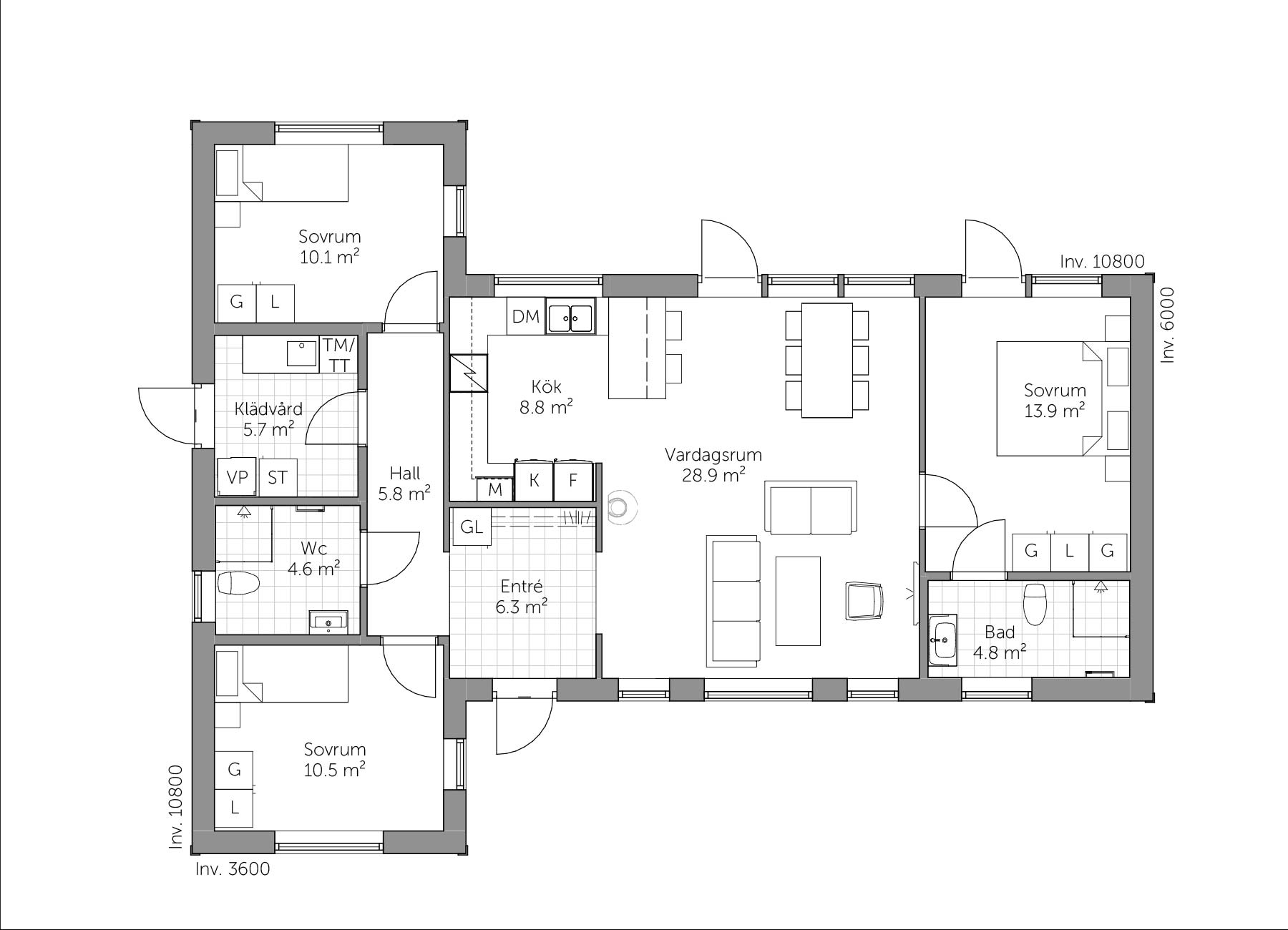
Karisma 104 är ett elegant enplanshus med en genomtänkt T-formad planlösning som skapar naturliga och vindskyddade uteplatser. Husets arkitektur förenar funktion och estetik i ett harmoniskt hem där både planlösning och utemiljö samverkar.

Centralt vardagsrum för gemenskap

Det rymliga vardagsrummet utgör husets hjärta och ligger centralt i anslutning till köket. Här skapas en naturlig samlingsplats för familjeliv och umgänge, med god överblick och ett fint flöde mellan hemmets sociala ytor.

Avskild sovrumsdel med smart vardagslogistik

Master bedroom är placerat avskilt i nära anslutning till vardagsrummet och har eget wc, vilket ger extra komfort och privatliv. I husets vinkeldel finns två sovrum, praktiskt placerade mellan wc och klädvård – en lösning som ger både avskildhet och smidig vardag.

Ett lättlevt och harmoniskt hem

Karisma 104 är ett välplanerat och inbjudande enplanshus där ljus, bekvämlighet och funktion står i fokus. Ett perfekt val för dig som söker ett kompakt men genomtänkt hem med skyddade uteplatser och tydlig struktur.

Planlösning och fasadritning

Våra husmodeller är utformade för att enkelt kunna anpassas, så att ditt hem blir precis som du vill ha det.

Spegelvänd planlösning och fasadritning

Vanliga frågor om Karisma 104

Vad är Karisma 104 för typ av hus?

Karisma 104 är ett enplanshus med T-formad planlösning och skyddade uteplatser.

Hur är planlösningen i Karisma 104?

Huset har ett centralt vardagsrum i anslutning till kök samt en avskild sovrumsdel med tre sovrum.

Hur många sovrum har huset?

Karisma 104 har tre sovrum, varav ett master bedroom med eget wc.

Finns det skyddade uteplatser?

Ja, den T-formade utformningen skapar naturliga, vindskyddade uteplatser.

Hur är sovrummen placerade?

Master bedroom ligger avskilt, medan de två övriga sovrummen är samlade i vinkeldelen nära wc och klädvård.

Finns det klädvård?

Ja, klädvården är praktiskt placerad mellan sovrummen för smidig vardagslogistik.

Passar Karisma 104 för familjeliv?

Ja, den tydliga zonindelningen och de skyddade uteplatserna gör huset väl anpassat för familjer.

Kan Karisma 104 anpassas efter egna önskemål?

Ja, Borohus erbjuder flexibilitet i planlösning, materialval och tillval för ett personligt hem.

Våra 1-planshus Välj husmodell
Våra villor Välj villamodell!
Leveransbeskrivning och produktinformation Läs om Borohus höga standard och fina tillval!
Intresserad? Kontakta oss eller beställ katalog

Kontakta oss     Beställ katalog

Finansiering Trygg husfinansiering via Nordea